Drift House

A client ready for a new start purchased a plot of land in her favorite place in the country: midcoast Maine. Envisioning a cozy hideaway in a friendly community, kayaking and paddleboarding after work, and hosting dinners against a backdrop of vibrant leaves, she worked with our team to design her dream home. We wanted to bring the outside in and create a refuge. Our goal was to create a modern, warm, and inviting home by capturing the colors of the water alongside vignettes of the foliage.

At a Glance…

  • Vaulted Living Area - feels light & airy

  • Abundant Natural Light

  • Basement Pottery Studio

  • Oversized Deck Off Living/Dining Area

  • Custom Tile Bathrooms

  • Primary Bedroom Skylights

  • Direct Water Access

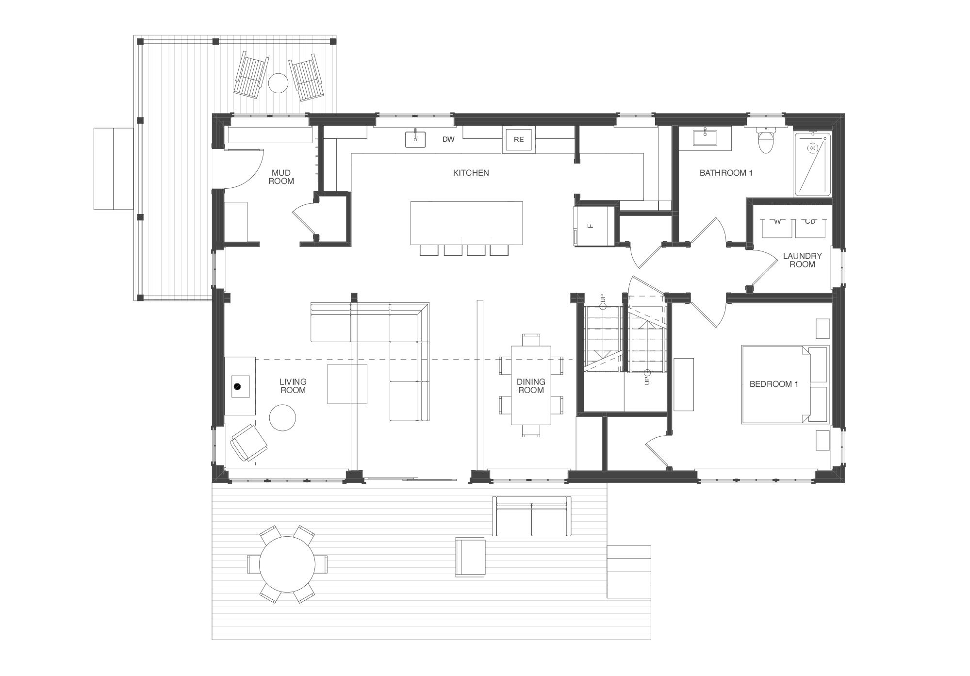
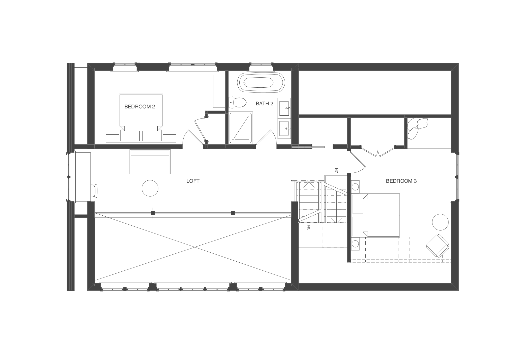
Living Space
2,400 SQ FT


BEDROOM
3


BATHROOM
2

  • Floor-to-ceiling height: 9'-0"

    Roof pitch: 12:12

    Foundation insulation: R-20 minimum, for below grade conditions.

    Walls: Double stud assembly, zip sheathing - all seams taped - R-40

    Roof: R-60 assembly

    Windows: Paradigm Triplepane Casements

    Exterior Doors: ThermaTru insulated with triple-lock system

  • ERV, wall-mounted air source heat pumps, Heat pump water heater

    Maple Cabinets, Maple Flooring, Ceasarstone kitchen counters, Jotul woodstove

  • Installed in factory:

    Merillat kitchen and bath cabinetry, windows and interior trim, interior doors and trim

    Installed on-site:

    Floors, kitchen countertops, kitchen and bath fixtures, siding, specialty fixtures, tile, any finishes outside of building footprint (decks, porches, etc)

The brighter
path to

your forever
home.

FIRST FLOOR

SECOND FLOOR

Enter your email address to get access to floor plans & more information.

Ready to go fully custom?

A home reflects more than just smart choices–it reflects you. At BrightBuilt, we plan with purpose, make sustainability second nature, and simplify.

Next
Next

A Home For Play