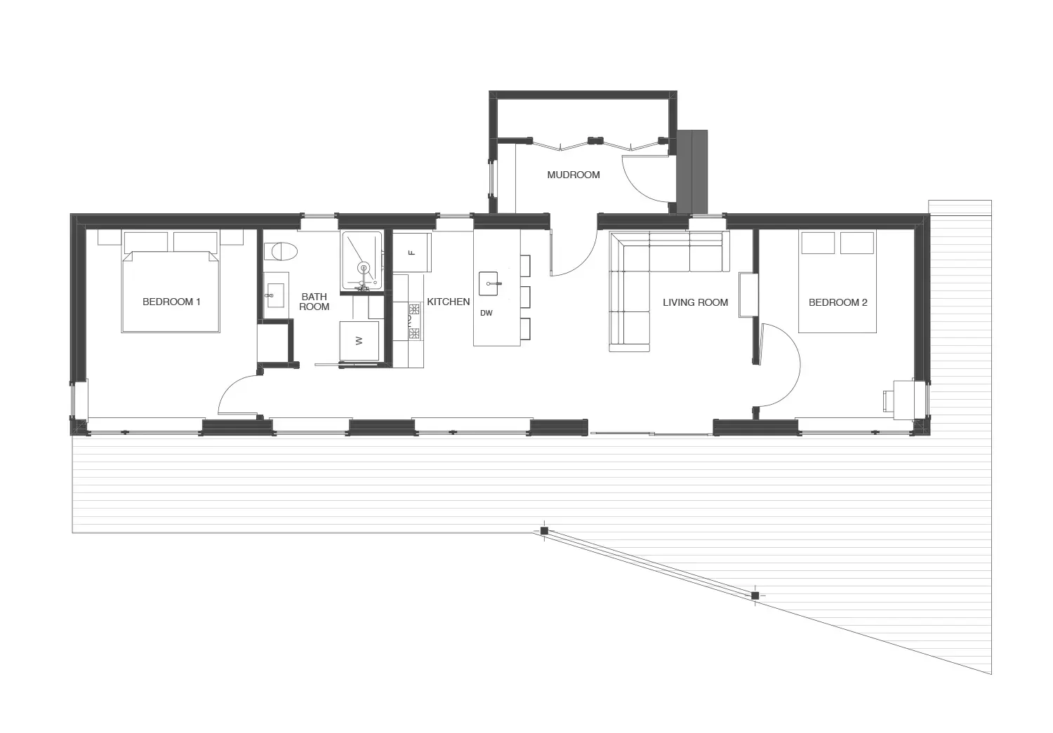
Canopy House

A young couple with a vision to turn their wooded lot into a welcoming destination seeded this first stunning structure for their retreat. With the scale of an ADU, and the light and spaciousness of a full sized home, this shed-roof, vaulted ceiling design knows how to make the most of light and site. Additions such as a matching sauna and a sprawling deck complete with hot tub and light-strung trellis further expand on this 2-bedroom retreat that anchors the bigger vision.

At a Glance…

  • VAULTED LIVING AREA WITH BROAD CLERESTORY WINDOWS - FEELS LIGHT, BRIGHT, AND AIRY

  • ABUNDANT natural light

  • OVERSIZED DECK WITH SAUNA + HOT TUB DOUBLES tHE SIZE AND FUNCTIONALITY OF INTERIOR LIVING AND DINING AREAS

  • CUSTOM TILE BATHROOM WITH WASHER ANd DRYER

  • DIRECT WATER ACCES

Living Space
812 SQ FT


Bedroom
2


Bathroom
1

  • Floor-to-ceiling height: 8'-0" - 14'-0"

    Roof pitch: 4:12 shed roof

    Foundation: insulation - R-20 minimum, for below grade conditions.

    Walls: double stud assembly, zip sheathing - all seams taped - R-40

    Roof: R-60 assembly

    Windows: Mathews Brothers Triplepane Casements & Fixed Units

    Exterior Doors: ThermaTru insulated with triple-lock system

  • Lunos through-wall

    (Two) wall-mounted air source heat pumps

    Heat pump water heater

  • Maple Cabinets

    Maple Flooring

    Ceasarstone kitchen counters

    Regency fireplace

    Installed in factory:

    Merillat kitchen and bath cabinetry, windows and interior trim, interior doors and trim

    Installed on-site:

    Floors, kitchen countertops, kitchen and bath fixtures, siding, specialty fixtures, tile, any finishes outside of building footprint (decks, porches, etc)

The brighter
path to

your forever
home.

FIRST FLOOR

Enter your email address to get access to floor plans & more information.

Ready to go fully custom?

A home reflects more than just smart choices–it reflects you. At BrightBuilt, we plan with purpose, make sustainability second nature, and simplify.

Previous
Previous

Compact Abundance

Next
Next

BrightBuilt Barn