Family Farmhouse

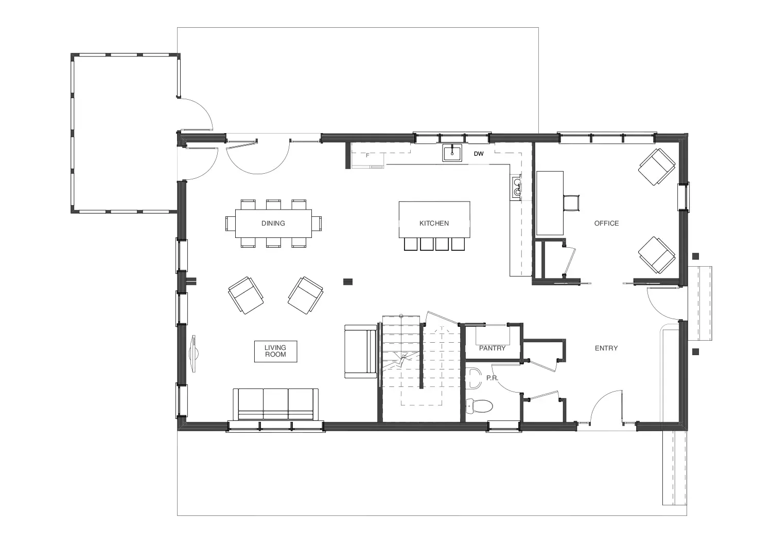
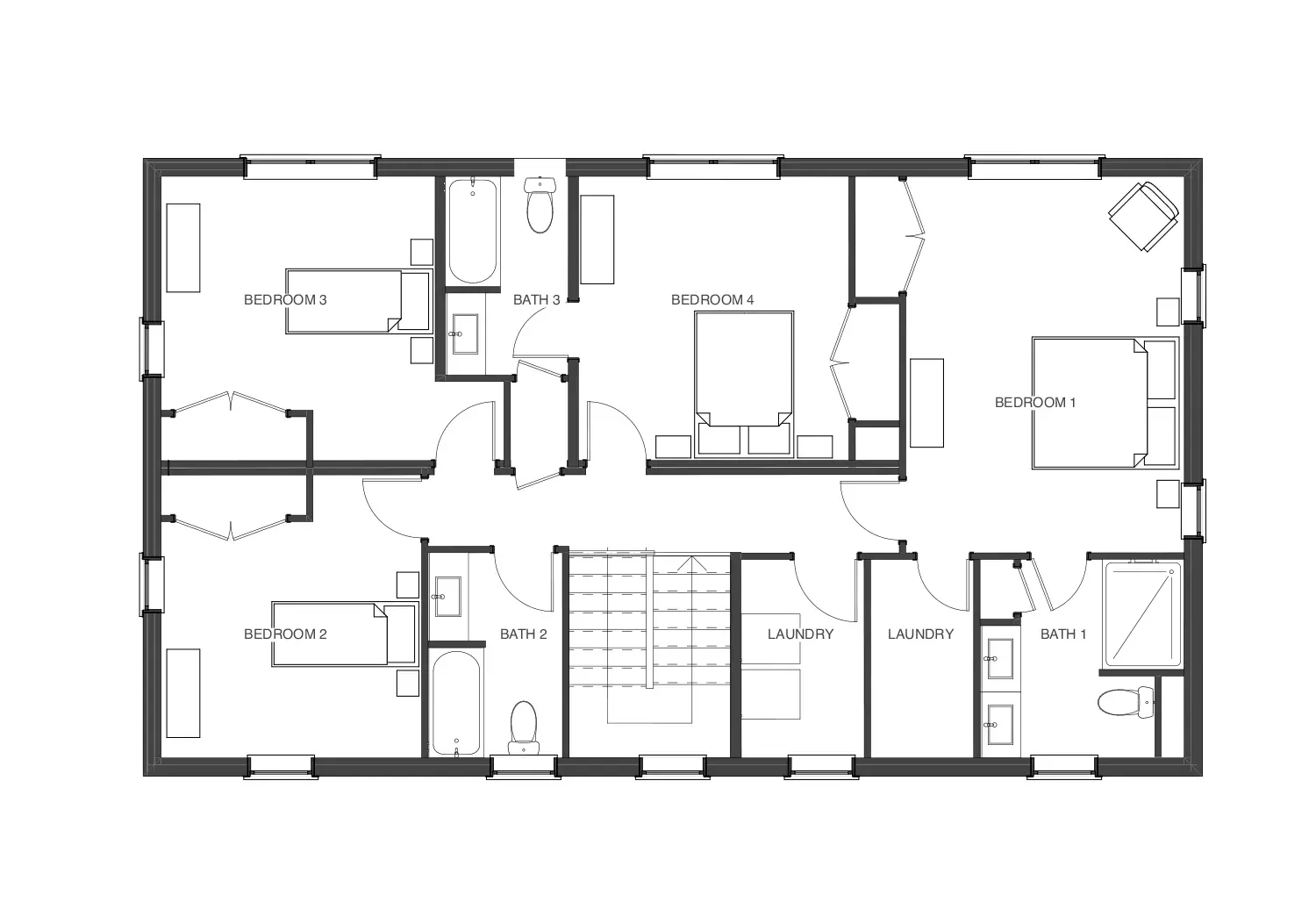
As early adopters in the net-zero movement, this family of five sought both energy independence and a peaceful family home base set in the rolling hills of Cumberland, Maine. To honor their love for the classic farmhouse, and a need for room for play, work, and the daily rhythms of family, we worked with them to adapt a BrightBuilt original into a sun-filled open-concept solar powered hub. A generous mudroom with tucked-away powder room, ample office space off the entry for focus space, a light-filled kitchen with central island and walk-in pantry opening to a generous living and dining area, and four comfortable bedrooms, three bathrooms and a laundry room on the second floor came together within the farmhouse frame, to make the perfect home for this young family.

At a Glance…

  • OPEN CONCEPT LIVING, DINING, kitchen, with 270 degree views to the sprawling landscape

  • ample mudroom with built-in storage

  • work-from-home dedicated office, with double-pocket doors for privacy

  • laundry room with folding counters and storage

  • three additional bedrooms and two fill baths on the second floor

  • partially finished basement

  • garage with finished loft, connects to the side mudroom entry via covered breezeway

Living Space
2690 SQ FT


Bedroom
4


Bathroom
3.5


SOLAR ARRAY
10.4 kW

  • First Floor-to-ceiling height: 9'-0"

    Roof pitch: 12:12 + 4:12 shed dormers

    Foundation insulation: R-30 ICF foundation walls

    Walls: staggered 8" double stud assembly + 2" exterior polyiso rigid foam - R-40

    Roof: R-60 assembly

    Windows: Paradigm Triple Pane Casements, Awnings & Fixed Units

    Exterior Doors: Jeld-wen insulated door

  • Ducted ERV air exchange

    Wall-mounted air source heat pumps

    Heat pump water heater

  • Maple Cabinets in Cotton White

    Maple Pre-finished Hardwood Flooring

    Quartz kitchen counters

    Installed in factory:

    Merillat kitchen and bath cabinetry, windows and interior trim, interior doors and trim

    Installed on-site:

    Floors, kitchen countertops, kitchen and bath fixtures, siding, specialty fixtures, tile, any finishes outside of building footprint (decks, porches, etc)

The brighter
path to

your forever
home.

FIRST FLOOR

SECOND FLOOR

Enter your email address to get access to floor plans & more information.

Ready to jump into design?

A home reflects more than just smart choices–it reflects you. At BrightBuilt, we plan with purpose, make sustainability second nature, and simplify.

Previous
Previous

BrightBuilt Barn