BrightBuilt Barn

The BrightBuilt Barn is a green geek’s dream: a radical attempt to see what’s possible at the outer limits of sustainable design. A visionary client asked our founders at Kaplan Thompson Architects to create an ultra-green, offsite fabricated net-zero building that can be adapted and replicated over time for other homeowners. They reached for their spreadsheets and called on their partners.

BrightBuilt Barn was the practical outcome of an in-depth collaboration between Kaplan Thompson Architects, Bensonwood Homes, ReVision Energy, and an impressive bench of Maine’s top green engineers and professionals. They wanted to create a high performance, energy efficient, affordable, and beautiful model home. It was an ambitious problem to solve, but that’s exactly why they were so excited. So excited, in fact, that they founded an entire firm on the premise and that's why we're here!

At a Glance…

  • Optimized for daylighting

  • fresh airventilation system for indoor air quality

  • visual connection to the outdoors

  • sustainable landscape

  • native plantings

  • Ecology stormwater management

  • resilient landscape design

  • designed to maintain natural drainage patterns

Living Space
740 SQ FT


Bedroom
1


Bathroom
1

  • Fossil fuel-free building

    Uses renewable energy systems

    Uses passive design strategies

    R-6 windows

    R-40 walls

    R-40 roof

    Net zero

    Meets some Passive House requirements

    Has an integrated energy monitoring system

    Fresh air ventilation system with heat recovery

    Super-insulated

    Triple-glazed windows

    High Quality Air-tight construction: 0.6 ACH50

    Electric vehicle charging integration

    Battery storage system for back-up power & grid management

    Has achieved LEED Platinum Certification

    HERS score of 0

  • Solar hot water system

  • Uses recycled or reclaimed materials

    Uses locally-sourced materials

    Designed for durability

    Designed for low maintenance

    Designed for minimal embodied energy

    Low global warming potential insulation

The brighter
path to

your forever
home.

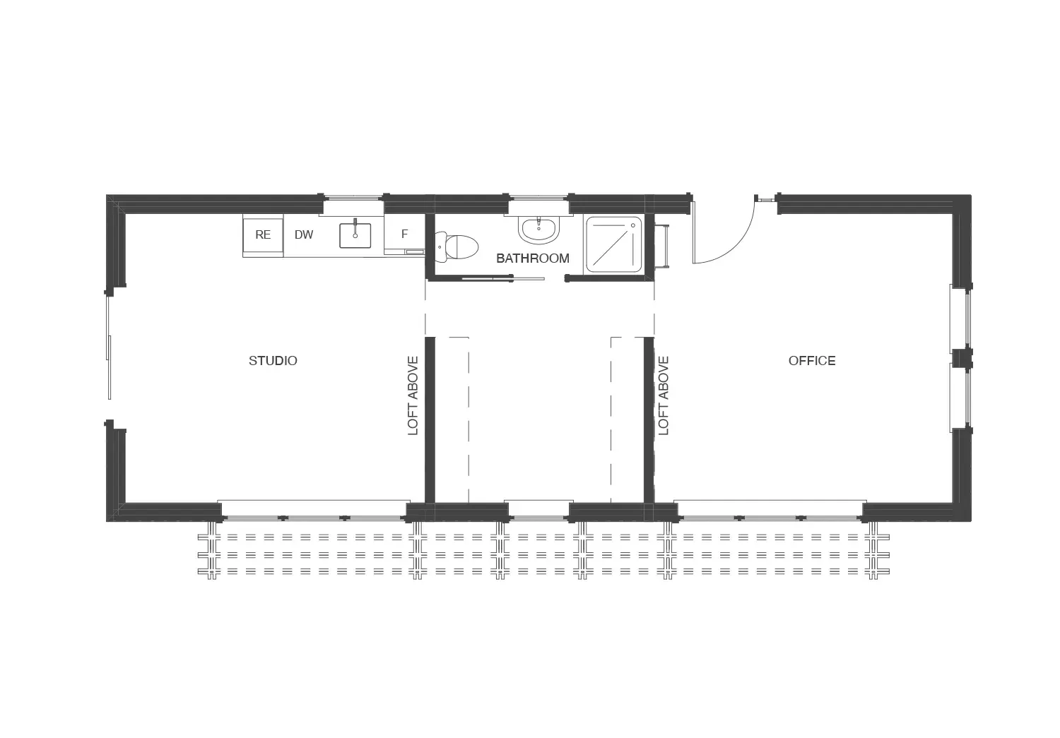
FIRST FLOOR

Enter your email address to get access to floor plans & more information.

Ready to jump into design?

A home reflects more than just smart choices–it reflects you. At BrightBuilt, we plan with purpose, make sustainability second nature, and simplify.

Previous
Previous

Canopy House

Next
Next

Family Farmhouse