Squares + Peaks

Relocating from just a few blocks away, this family aimed to build out their dream high-performance home with consideration for every last detail. A strong design aesthetic guided every decision, from bath fixtures to window proportions to color schemes. We thoroughly enjoyed putting a more modern spin on their Maine vernacular, and working with the owners to mold the perfect vision for their new home.

At a Glance…

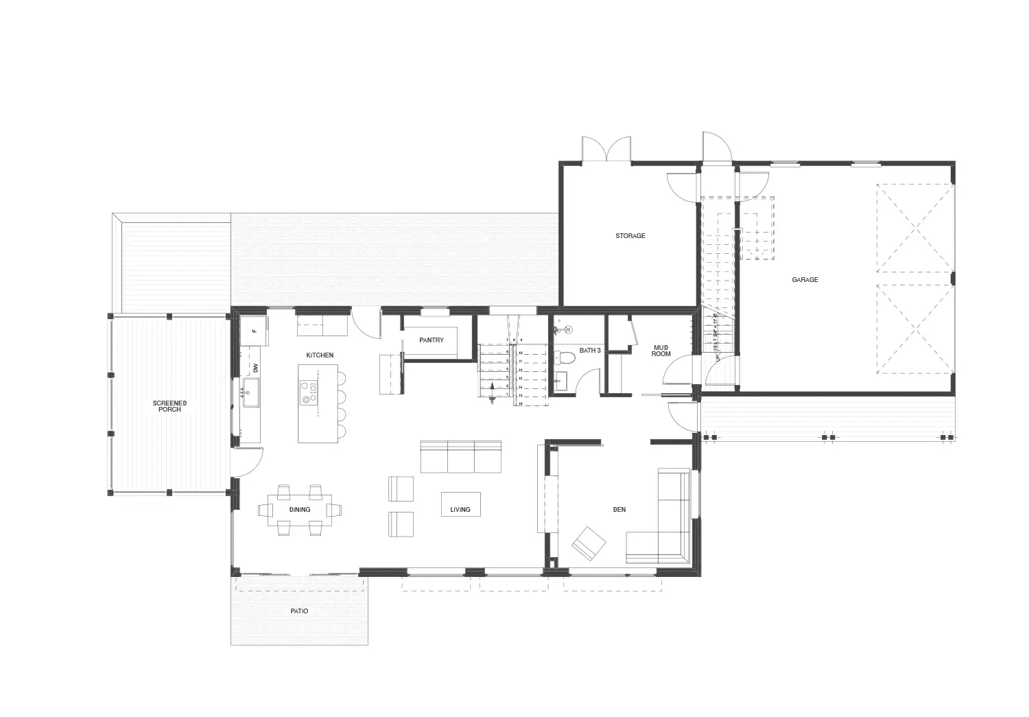
  • Generous kitchen with large island slab, walk-in pantry, wall ovens

  • Central living/dining area with double slider to deck

  • Double-sided gas stove fireplace between office and living room

  • Dedicated first floor office space / media room

  • Mudroom equipped with full bath

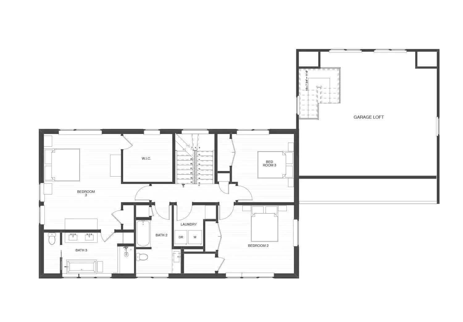
  • Primary master suite with 5-fixture bath and spacious walk-in closet

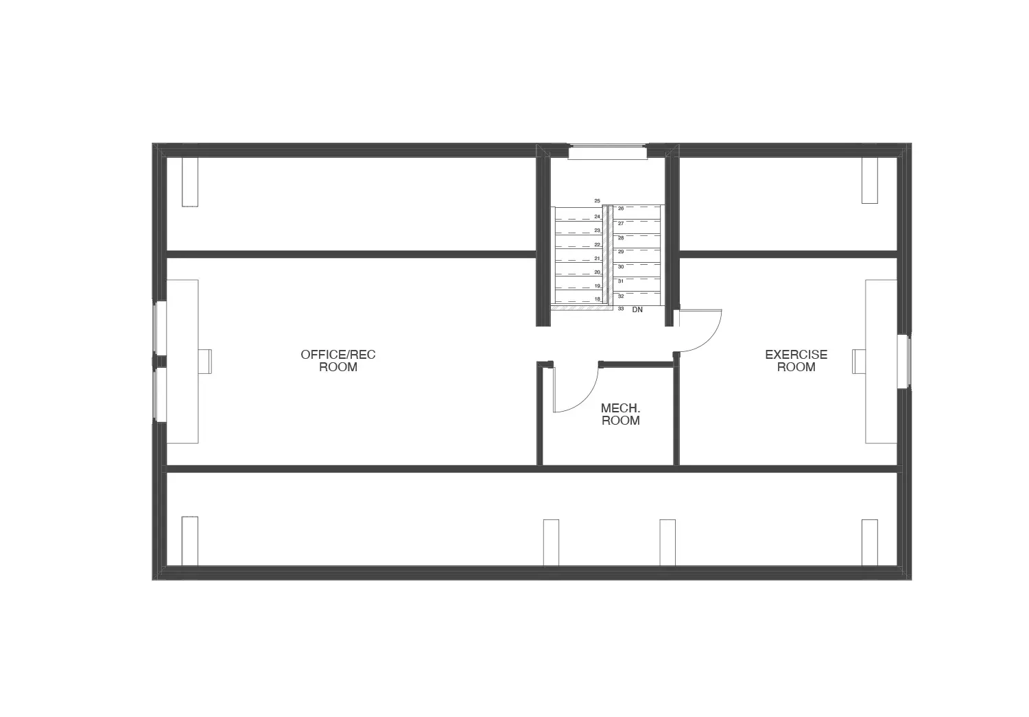
  • Finished Attic space for additional office & fitness space

  • Generous screened porch

  • 2-Car Garage, with finished upstairs loft area, separate from house

Living Space
3,145 SQ FT


BEDROOM
3
+3 office spaces


BATHROOM
2


SOLAR
9.8 kW Array designed (not yet installed)

  • Floor-to-ceiling height, 1st floor : 9'-0"

    Floor-to-ceiling height, 2nd floor: 8'-0"

    Roof pitch: 12:12

    Sub-slab insulation: R-20

    Walls: double stud assembly, CDX plywood sheathing, Harvey Blueskin WRB - R-40

    Roof: R-60 assembly

    Windows: Logic Triplepane Tilt/Turns

    Exterior Doors: ThermaTru Classic Craft insulated door with multi-point lock system

  • ERV

    Combination Ducted & wall-mount Air Source Heat Pump System

    Heat Pump Water Heater

  • Black Quartz Counters

    Polished concrete floor on main level

    Hardwood ash flooring on upper levels

    Tiled mudroom & bathrooms

    Drywall return window trim w/Baltic Birch Sills

    Vertical siding, painted white

    Site-built home

The brighter
path to

your forever
home.

FIRST FLOOR

SECOND FLOOR

THIRD FLOOR

Enter your email address to get access to floor plans & more information.

Ready to jump into design?

A home reflects more than just smart choices–it reflects you. At BrightBuilt, we plan with purpose, make sustainability second nature, and simplify.

Previous
Previous

Ledgewood

Next
Next

Compact Abundance