Ledgewood

A couple purchased their dream lot and quickly went to work envisioning their forever home along the coast of Southern Maine. With a keen eye for exquisite details and a love of the traditional farmhouse, they worked with us to blend sensibilities and develop a home that is simultaneously modern and timeless. The sun-drenched living spaces, expansive tilt/turn windows, spa-inspired bath tile, and specialty Bulthaup kitchen cabinets are signature elements that bring the design to life.

At a Glance…

  • Nine foot ceilings - open and airy without needing to vault

  • abundant natural light

  • custom spa-like bathrooms

  • specialty bulthaup kitchen, pantry, and mudroom cabinetry

  • polished concrete floors on main level

  • floor-to-ceiling windows at glazed southwestern corner

  • 3-car garage equipped with tesla powerwalls for backup power

  • flex space on 2nd floor for media, CREATIVITY and overflow guest space

  • slab-on-grade, site-built

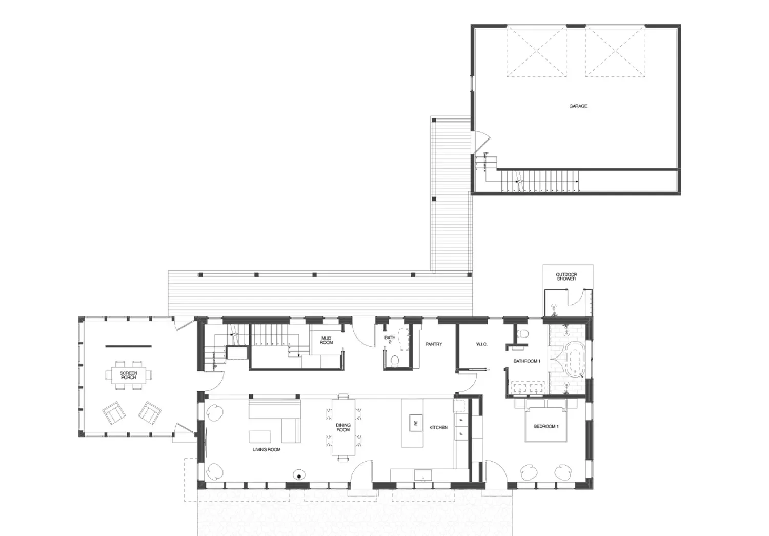
Living Space
2,650 SQ FT + 675 SQ FT
of future finished space above garage


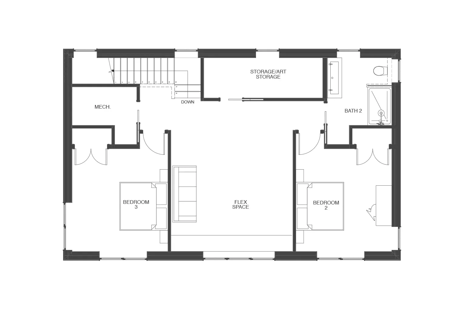
Bedroom
3


Bathroom
2.5

  • Floor-to-ceiling height: 9'-0"

    Roof pitch: 12:12

    Foundation insulation: R-24 sub-slab insulation

    Walls: 11" double stud assembly w/dense-pack cellulose (R42)

    Roof: R-67 dense pack cellulose

    Windows: Shuco triple-pane European Tilt-Turn

    Exterior Doors: Shuco triple-pane

  • Zehnder ERV

    Ducted Air Source Heat Pump System

    Heat Pump Water Heater

  • Bulthaup Cabinets in Walnut and Aluminum

    Silestone kitchen counters

    Polished concrete flooring with seashell inlay mix

    Maple hardwood flooring on 2nd floor

    Hase Bari woodstove

    Grohe, Kohler, Gerberit, Robern bath and kitchen fixtures

The brighter
path to

your forever
home.

FIRST FLOOR

SECOND FLOOR

Enter your email address to get access to floor plans & more information.

Ready to go fully custom?

A home reflects more than just smart choices–it reflects you. At BrightBuilt, we plan with purpose, make sustainability second nature, and simplify.

Previous
Previous

A Home For Play

Next
Next

Glenn's Friend