"There’s not one design element we would’ve changed"
"Our experience with BrightBuilt was fantastic"
"Home of our dreams with no recurring energy costs"
"The most comfortable home we’ve ever lived in"

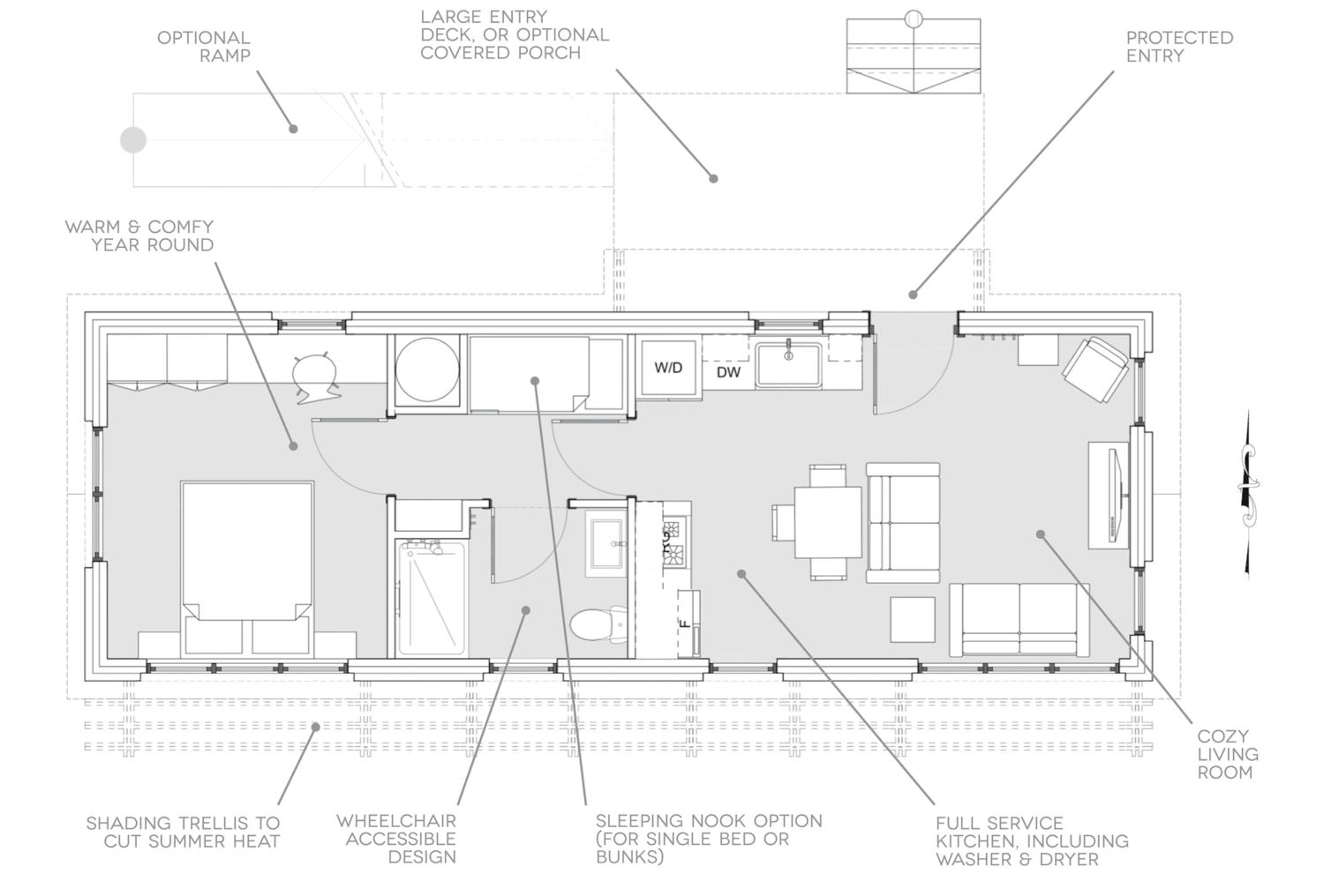
If you've been wishing for some added living space, we've cooked up the perfect solution for you!
Stay tuned for more details on this exciting new option - coming to a backyard, lakefront, or woodland setting near you! Please contact us today to learn more.

©YEAR BrightBuilt Home, LLC. All Rights Reserved